The Rice Barn House design is largely driven by responding to the site’s environmental condition and by celebrating the inherited traditional local construction methodology.

The Rice Barn House
Tangerang, Indonesia
2022
494 m²
Residential
Completed
Architecture, Interior
Given a compact lot and a brief by the client to have sufficient programs in the house, our approach seeks to fuse Indonesia’s vernacular architecture with contemporary building technology to accommodate today’s living lifestyle. Thus, we incorporated vernacularism by using elements from lumbung padi (Indonesian Rice Barn), synthetized with modern material selections.
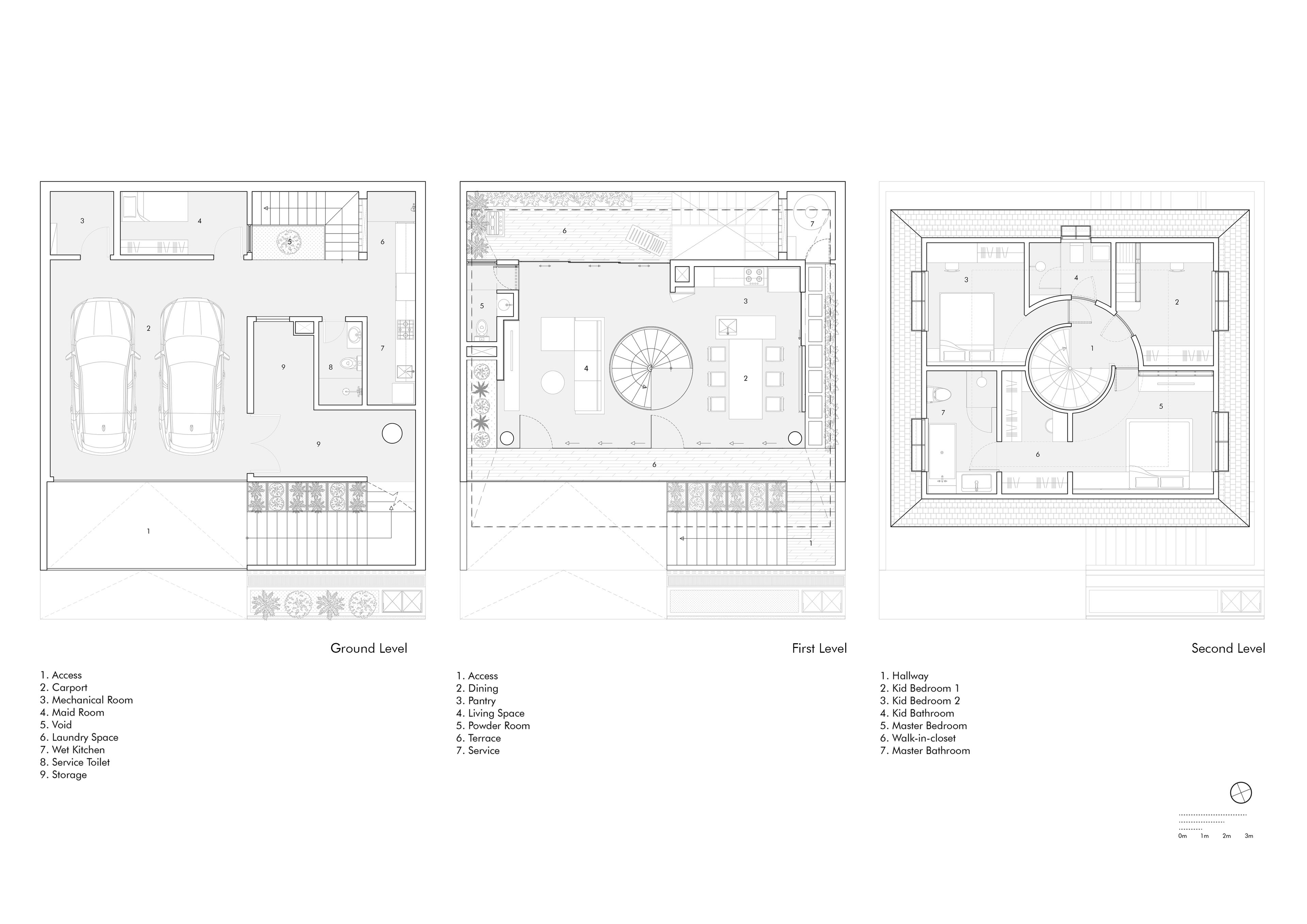
The form of the house was inspired by lumbung padi whose structure is built on 4 columns with a ground floor slab raised 2m above ground. Characterized by two levels, the traditional barn house is usually built with contrasting spatial qualities – ground level as an open-sided pavilion and first level as an enclosed private space. We associated these spatial qualities with living program placements.
The gambrel roof design from lumbung padi is modified into a trapezoid prism holding private programs such as bedrooms and private bathrooms. The roof of the prism is punctured with a circular skylight at the center, and the trapezoid’s slanted walls are punctured with window openings to supply natural light, and allow cross-and-stack ventilation throughout the private quarters.


Nested underneath is an open plan living room that is connected by a central spiral staircase. The living room is enveloped with frameless bi-fold doors that blur the outdoor-to-indoor boundary. Surrounded by continuous terraces and vegetation, the living room mimics the openness of the pavilion from lumbung padi, allowing as much natural wind flow to pass through from all sides. With the shifting of lifestyle nowadays, the access to natural ventilation is considered to be a significant element in quality of life, which bolster the openness of pavilion spatial quality.
All other supporting programs are clustered on the ground level to serve the needs of the living programs on the levels above. The modernization of lumbung padi traditional house is achieved through applying selection of modern building technologies and materiality that accommodates today’s lifestyle.








